


+10voir plans et photos

St-Pierre(2), East-Angus
Un milieu de vie familial, paisible et bien situé
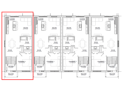
Offerte sur la rue Saint-Pierre, la maison de ville Mont-Écho propose une habitation fonctionnelle et lumineuse, idéale pour les familles souhaitant s’établir dans un environnement calme et accueillant.
Ce modèle se distingue par son aménagement efficace, ses espaces bien pensés et son design contemporain, offrant un milieu de vie confortable et facile à vivre au quotidien.
Implantée dans un secteur familial et paisible, à proximité des écoles, services et espaces verts, la propriété permet de profiter d’un quotidien pratique, tout en restant près de tout.
La maison de ville Mont-Écho représente une opportunité clé en main pour ceux qui recherchent un milieu de vie adapté à la vie de famille.
Un environnement accueillant, où il fait bon s’établir.
Idéals pour les premiers acheteurs!
Cuisine contemporaine
Grand îlot
Comptoir de stratifié
Hotte en acier inoxydable
Ligne d'eau pour le frigo
Main courante en bois franc verni
Salle de bain avec bain-douche en céramique
Espace de lavage au sous-sol
Porte patio de 6 ′
Thermopompe
Revêtements de plancher :
Rez-de-chaussée : flottant & céramique 24 ″ X 24 ″
Escalier : tapis
Sous-sol (en option) : planchette de vinyle
Revêtement extérieur : vinyle
Portes & fenêtres blanches
Patio 12 ′ X 12 ′
Luminaires inclus
Armoires de cuisine au plafond
Bâtiment : 24′ x 37′ (840 pi²)
Rez-de-chaussée
Étage
Sous-sol